Delegacija Vlade ZDK posjetila Istanbulsku privrednu komoru: Najavljeno učešće na sajmu ZEPS 2026
Delegacija Vlade Zeničko-dobojskog kantona na čelu s premijerom Nezirom Pivićem, posjetila je Istanbulsku priv...
Pročitaj više|
1. |
Naziv |
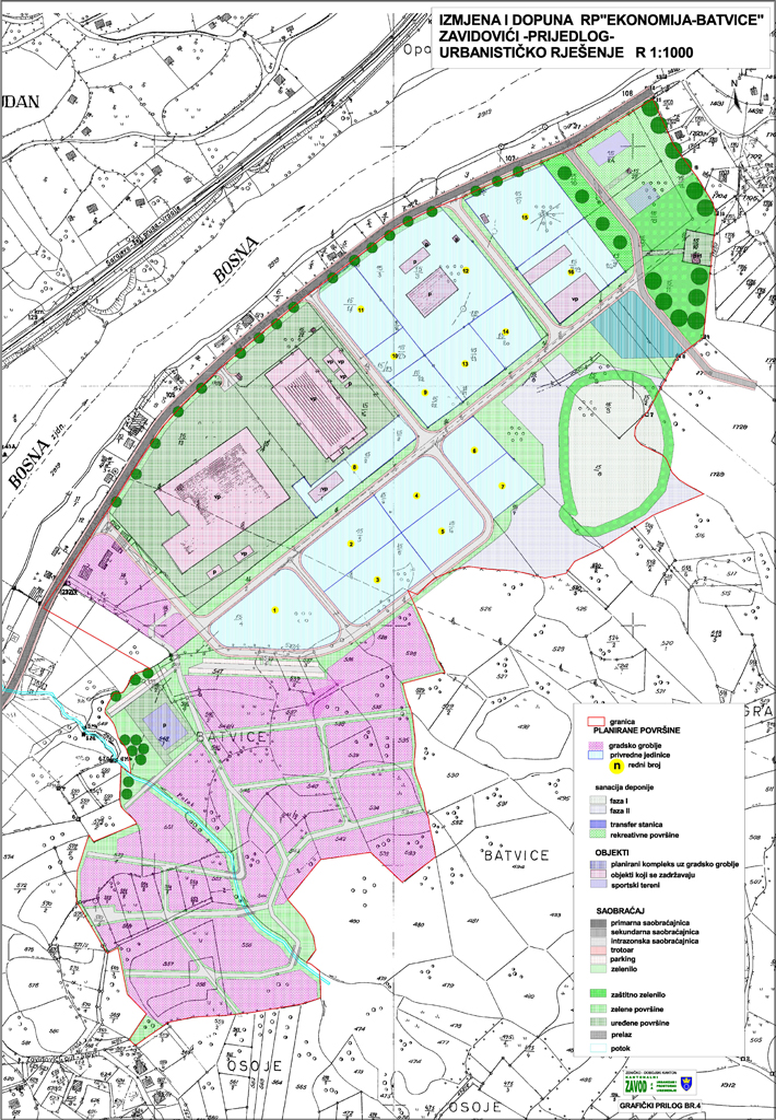
EKONOMIJA-BATVICE |
||
|
2. |
Adresa |
Krivajska bb; 72220 ZAVIDOVIĆI |
|
|
|
3. |
Kontakt osoba |
Džeraldina Miličević, mr.sci. ; Almir Mustafić, dipl.ecc. |
|
|
|
4. |
Putna komunikacija |
|
|
|
|
4.1. |
Udaljenost od regionalnog puta |
0 km (12 km od magistralnog puta) |
|
|
|
4.2. |
Udaljenost od željeznice |
2 km |
|
|
|
4.3. |
Udaljenost od aerodroma |
120 km |
|
|
|
4.4. |
Udaljenost od centra općine |
1,5 km |
|
|
|
4.5. |
Udaljenost od grada Zenice |
47 km |
|
|
|
5. |
Karakteristike terena |
|
|
|
|
5.1. |
Topografija terena |
Ravan, blago nagnut |
|
|
|
5.2. |
Karakteristike tla |
Glinovito |
|
|
|
6. |
Veličina i infrastruktura |
|
|
|
|
6.1. |
Površina poslovne zone |
326.600 m2 |
|
|
|
6.2. |
Površina urbanističkih planova za područje zone |
326.600 m2 |
|
|
|
6.3. |
Karakter područja zone |
Prerađivačka industrija |
|
|
|
6.4. |
Postojanje urbanističkih ograničenja |
Nema urbanističkih ograničenja |
|
|
|
6.5. |
Predviđena namjena objekta |
Proizvodna i uslužna |
|
|
|
6.6 |
Infrastruktura/isprojektirano ili izgrađeno/ |
Putna mreža |
||
|
|
|
Odovodnja oborinskih i otpadnih voda |
||
|
|
|
Vodovodna i hidrantska mreža |
||
|
|
|
Javna rasvjeta |
||
|
|
|
Telekomunikacije |
||
|
|
|
Elektro priključak |
||
|
6.7. |
Pravni status zone |
Nema pravni status |
||





